Schmelz:
Bestpreisgarantie bei Bien-Zenker - Die Erfüllung Ihres Traums - Ihr Haus mit Grundstück
Objekt-Nr.: 12221-Schmelz_17Bal131-143

Außenansicht

Außenansicht

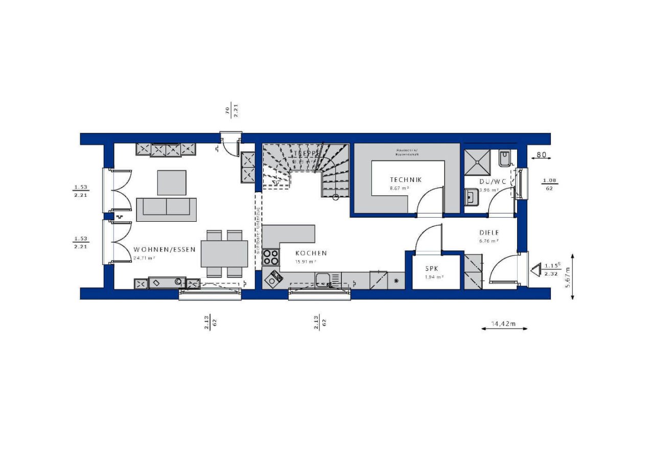
EG

DG

Wohnen

Wohnen

Wohnen

Wohnen

Wohnen

Wohnen

Wohnen

Wohnen

Küche

Küche

Küche

Küche

Küche

Kind

Kind

Kind

Kind

Schlafen

Schlafen

Schlafen

Schlafen

Bad

Bad

Bad

Bad

Best- und Festpreis-Garantie

QNG-Zertifizierung

Deutscher Fertigbau

Fairster Fertighausanbieter

Begehrtester Fertighausanbieter

Herausragende Kundenzufriedenheit

Top Musterhäuser

Beste Nachhaltigkeit

Ausgezeichnete Bonität

Ausgezeichnete Nachhaltigkeit

Erster Platz KfW-Effizienzhäuser 40 Plus








































Preis:
448.736 €
Wohnfläche ca.:
129,99 m²
Grundstück ca.:
563 m²
Zimmeranzahl:
4
Das Füllen einer Baulücke kann für die Bauherren eine echte Herausforderung sein - aber auch eine Chance. Denn gerade ungewöhnlich geschnittene Grundstücke erfordern ungewöhnliche Architekturlösungen - so wie dieser Entwurf. Das Einfamilienhaus erstreckt sich über eine Länge von 14,42 m. In seiner Breite misst es jedoch gerade einmal 5,67 m. Damit fügt es sich perfekt in schmale Baulücken oder Restgrundstücke ein. Selbstbewusst reckt sich der quaderförmige Baukörper in die Höhe. So entstehen zwei Vollgeschosse, die mit einer Wohnfläche von knapp 130 m² viel Entfaltungsfreiraum für eine vierköpfige Familie bieten. Gekrönt wird das Fertighaus von einem modern interpretierten Satteldach, das an den Traufseiten bündig mit der Fassade abschließt. An den Giebelseiten avanciert ein schmaler Dachüberstand, der sich in einen attraktiven Fassadenrahmen verlängert, zum Blickfang. Raffiniert sind die Lichtöffnungen angeordnet.…
Zur Gartenseite öffnet sich der Zweigeschosser mit raumhohen Fenstern und Verglasungen, seitlich sorgen schlanke Lichtbänder, die auch einmal übereinander angeordnet sein dürfen, für ein lichtdurchflutetes Wohnambiente. Das Erdgeschoss präsentiert sich als offener Lebensraum. Fließend geht die Diele, an die sich rechts ein Bad mit Dusche anschließt, in den Wohn-, Ess- und Kochbereich über. Ein Highlight ist die lange Küchenzeile, an der sich auch mehrere Hobbyköche garantiert nicht in die Quere kommen. Neben den Arbeitsbereichen ist auf der Arbeitsplatte noch ausreichend Platz für den Kaffeeautomaten, die Küchenmaschine und den Toaster vorhanden. Vorräte und Getränkekästen können ordentlich in der Speisekammer verstaut werden. So bleiben die Küchenschränke frei für Geschirr, Pfannen und Töpfe. Ein Technik- bzw. Hauswirtschaftsraum, in dem die gesamte Haus- und Heiztechnik untergebracht wird, ergänzt das Raumangebot auf der unteren Ebene. Ein Keller wird damit nicht benötigt. Das Obergeschoss beherbergt die Privaträume. Um eine luftige Galerie gruppieren sich zwei gleich geschnittene Kinderzimmer, das Familienbad mit Wanne und Dusche sowie der große Elternschlafraum mit vorgelagerter Ankleide.
Haustyp: Einfamilienhaus
Etagenanzahl: 2
Provisionspflichtig: nein
Anzahl Schlafzimmer: 3
Anzahl Badezimmer: 1
Gäste-WC: ja
Keller: voll unterkellert
Qualität der Ausstattung: gehoben
Bauphase: Haus in Planung (projektiert)
Zustand: Haus in Planung (projektiert)
Das könnte Ihnen auch gefallen

Christian Müller - Freie Handelsvertretung der Bien-Zenker GmbH
Herr Christian Müller
Am Alten Schwimmbad 2
66450 Bexbach
Telefon: +49 152 34124425
66839 Schmelz



























































































































