Schmelz:
Bestpreisgarantie bei Bien-Zenker - Herrliches Traumhaus in wundervoller Umgebung
Objekt-Nr.: 12221-p142-39

Außenansicht

EG

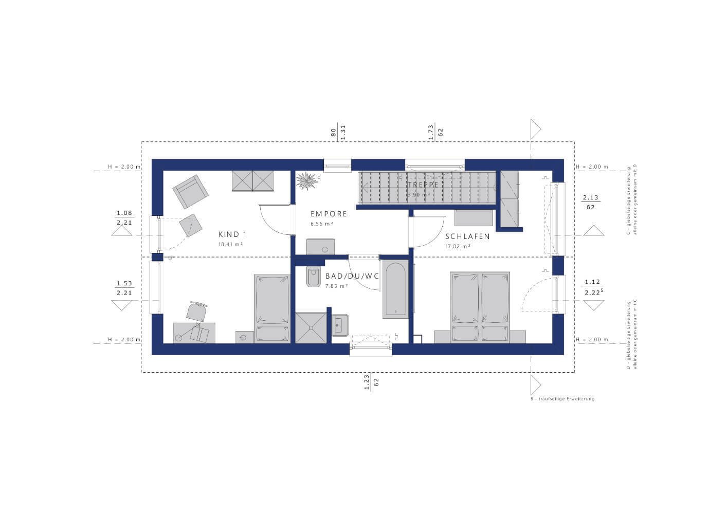
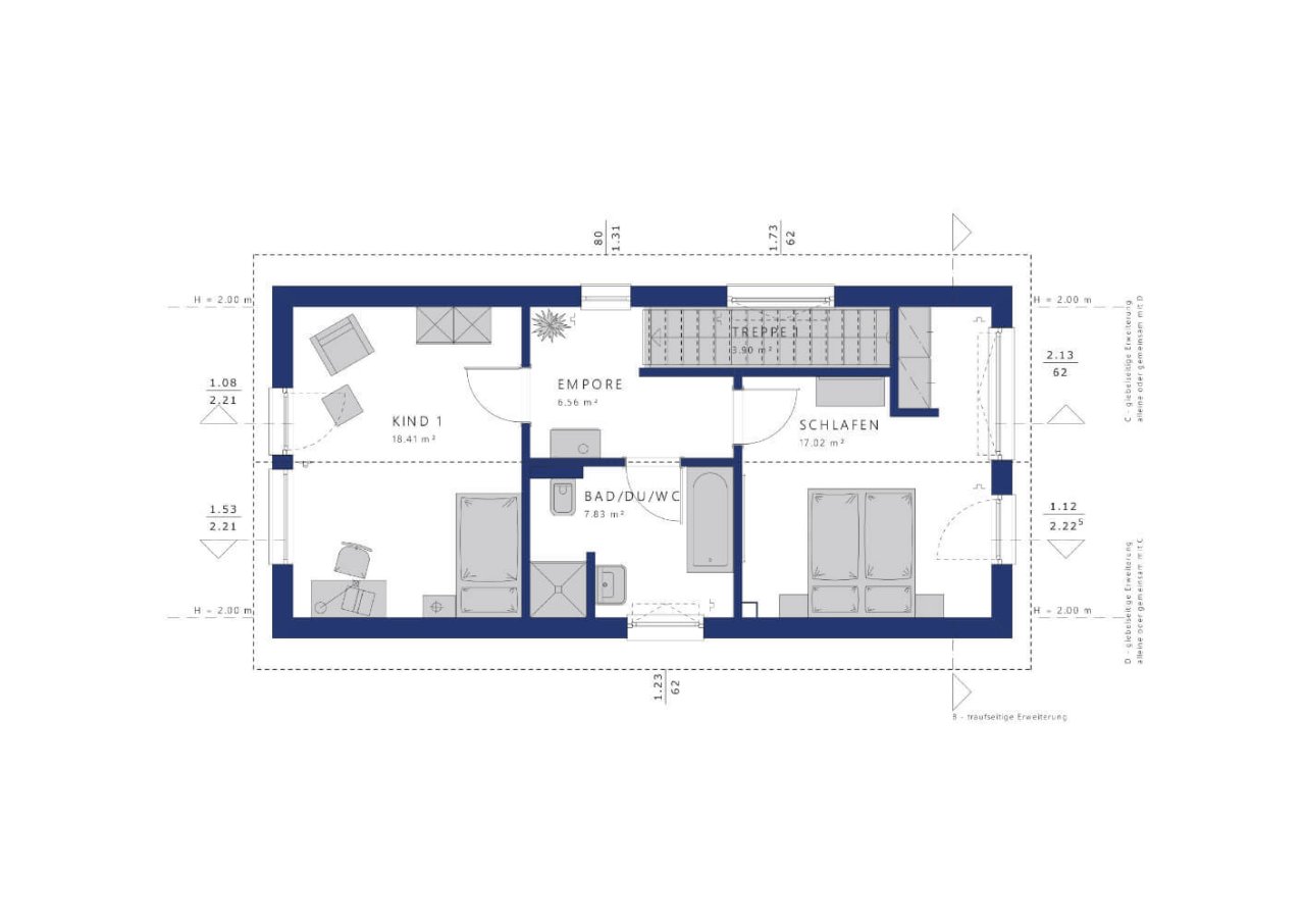
DG

Wohnen

Wohnen

Wohnen

Wohnen

Wohnen

Wohnen

Wohnen

Wohnen

Küche

Küche

Küche

Küche

Küche

Kind

Kind

Kind

Kind

Schlafen

Schlafen

Schlafen

Schlafen

Bad

Bad

Bad

Bad

Best- und Festpreis

Deutscher Fertigbau

Begehrtester Fertighausanbieter

Herausragende Kundenzufriedenheit

Top Musterhäuser

Unternehmen des Jahres

Beste Nachhaltigkeit

Ausgezeichnete Bonität

Ausgezeichnete Nachhaltigkeit

Erster Platz KfW-Effizienzhäuser 40 Plus






































Preis:
400.823 €
Wohnfläche ca.:
107,09 m²
Grundstück ca.:
563 m²
Zimmeranzahl:
3
Als echtes Raumwunder präsentiert sich das BALANCE 107. Mit nur 5,67 Metern Breite passt es auf schmalste
Baulücken und Grundstücke und bietet drinnen das ganze Erlebnis des offenen Wohnens. Von der Diele aus geht
es direkt in den Koch-Ess-Wohnbereich. Nach oben führt eine elegante, geradläufige Treppe in die Privaträume
einer dreiköpfigen Familie; mit ansprechendem Familienbad und einem intelligent aufgeteilten Elternbereich.
Die gerade Treppe ist das Markenzeichen der Entwurfsfamilie, zu der neben dem BALANCE 107 auch unser
BALANCE 120 und BALANCE 146 zählen. Das 120er eignet sich ausgezeichnet für die vierköpfige Familie und
bietet mit großflächigen, hausbreiten Verglasungen, die sogar über Eck reichen können, lichtdurchflutetes
Wohnen. Das 146er ist das größte der drei und ermöglicht die Erschließung des Eigenheims auf der Längsseite
des Gebäudes.
Haustyp: Einfamilienhaus
Etagenanzahl: 2
Provisionspflichtig: nein
Anzahl Schlafzimmer: 2
Anzahl Badezimmer: 1
Gäste-WC: ja
Keller: voll unterkellert
Qualität der Ausstattung: gehoben
Bauphase: Haus in Planung (projektiert)
Zustand: Haus in Planung (projektiert)
Das könnte Ihnen auch gefallen

Christian Müller - Freie Handelsvertretung der Bien-Zenker GmbH
Herr Christian Müller
Am Alten Schwimmbad 2
66450 Bexbach
Telefon: +49 152 34124425
66839 Schmelz