Mettlach:
Bestpreisgarantie bei Bien-Zenker - Realisieren Sie sich Ihren Wohntraum
Objekt-Nr.: 12221-137-42

Außenansicht

Außenansicht

Außenansicht

Außenansicht

EG

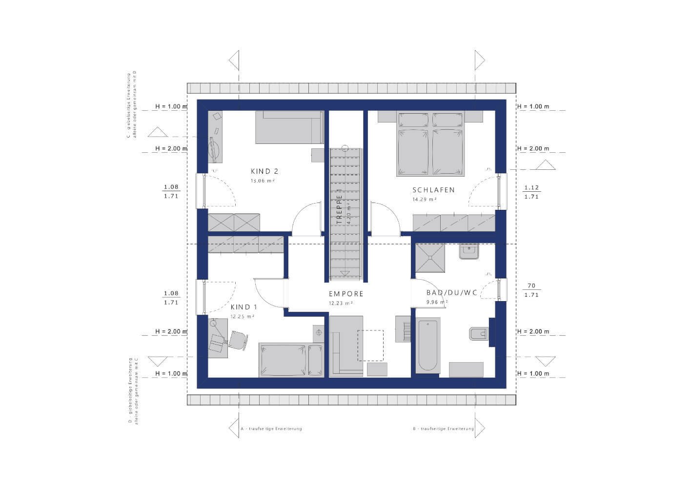
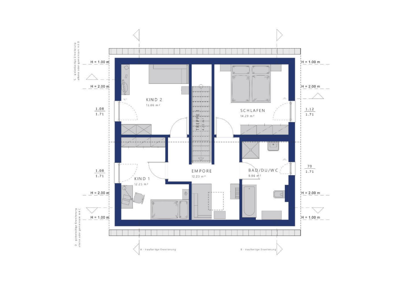
DG

Wohnen

Wohnen

Wohnen

Wohnen

Wohnen

Wohnen

Wohnen

Wohnen

Küche

Küche

Küche

Küche

Küche

Kind

Kind

Kind

Kind

Schlafen

Schlafen

Schlafen

Schlafen

Bad

Bad

Bad

Bad

Best- und Festpreis

Deutscher Fertigbau

Begehrtester Fertighausanbieter

Herausragende Kundenzufriedenheit

Top Musterhäuser

Unternehmen des Jahres

Beste Nachhaltigkeit

Ausgezeichnete Bonität

Ausgezeichnete Nachhaltigkeit

Erster Platz KfW-Effizienzhäuser 40 Plus









































Preis:
393.409 €
Wohnfläche ca.:
133,48 m²
Grundstück ca.:
317 m²
Zimmeranzahl:
5
Das EDITION 134 wächst mit Ihren Ansprüchen. Bestimmen Sie mit Wohnraumerweiterungen, die auf allen vier Hausseiten möglich sind, wie groß Ihr neues Eigenheim werden soll. Mehr Platz in der Küche? Zusätzlicher Raum für die Sitzecke im Wohnzimmer? Ein größeres Bad? Bei Ihrem EDITION 134 ist alles machbar. Design your life!
Haustyp: Einfamilienhaus
Etagenanzahl: 2
Provisionspflichtig: nein
Anzahl Schlafzimmer: 3
Anzahl Badezimmer: 1
Gäste-WC: ja
Keller: voll unterkellert
Qualität der Ausstattung: gehoben
Bauphase: Haus in Planung (projektiert)
Zustand: Haus in Planung (projektiert)
Das könnte Ihnen auch gefallen

Christian Müller - Freie Handelsvertretung der Bien-Zenker GmbH
Herr Christian Müller
Am Alten Schwimmbad 2
66450 Bexbach
Telefon: +49 152 34124425
66693 Mettlach