Allenbach:
Bestpreisgarantie bei Bien-Zenker - Individuelle Planung mit starkem Partner
Objekt-Nr.: 12221-116-43

Außenansicht

Außenansicht

Außenansicht

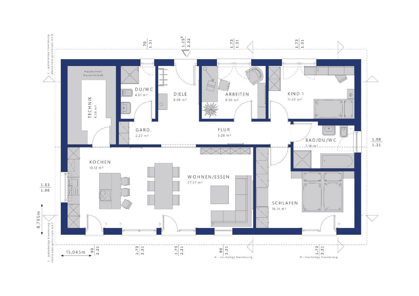
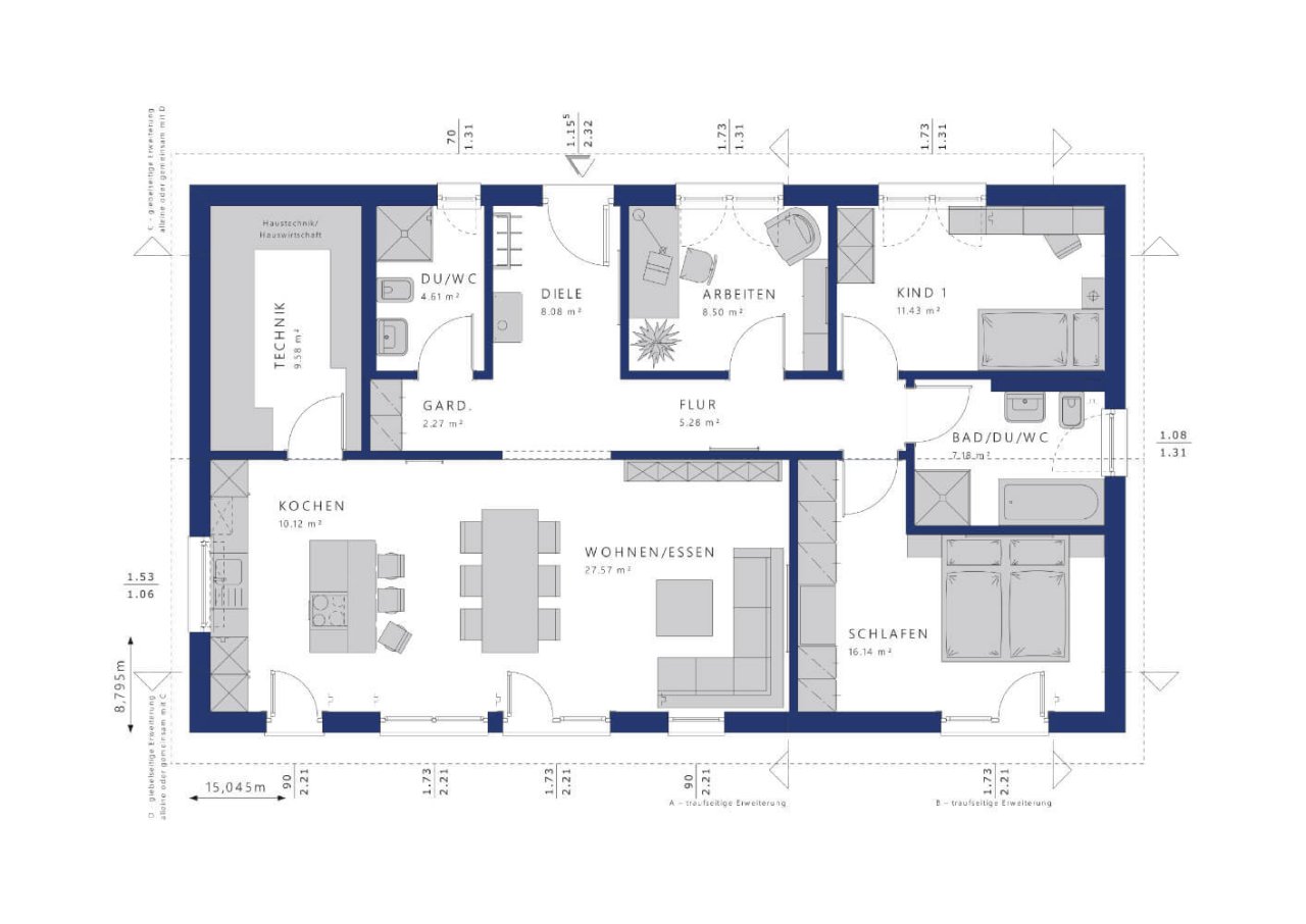
EG

Wohnen

Wohnen

Wohnen

Wohnen

Wohnen

Wohnen

Wohnen

Wohnen

Küche

Küche

Küche

Küche

Küche

Kind

Kind

Kind

Kind

Schlafen

Schlafen

Schlafen

Schlafen

Bad

Bad

Bad

Bad

Best- und Festpreis

Deutscher Fertigbau

Begehrtester Fertighausanbieter

Herausragende Kundenzufriedenheit

Top Musterhäuser

Unternehmen des Jahres

Beste Nachhaltigkeit

Ausgezeichnete Bonität

Ausgezeichnete Nachhaltigkeit

Erster Platz KfW-Effizienzhäuser 40 Plus







































Preis:
421.649 €
Wohnfläche ca.:
110,75 m²
Grundstück ca.:
739 m²
Zimmeranzahl:
4
Praktische Diele mit Garderobe, offener, lichtdurchfluteter Wohnbereich, ein zusätzliches Arbeits- und ein separates Gäste- oder Kinderzimmer mit Dusch-WC: Wer sagt denn, dass ein Bungalow nicht ein absolut vollwertiges Eigenheim für zwei bis drei Personen ist? Der Entwurf „Ambience 111“ überzeugt sowohl mit seinem wohldurchdachten Grundrisskonzept als auch
mit überaus ansprechender Architektur. Neben tollen Erkerlösungen, die noch mehr Wohnraum und einladende Terrassensituationen schaffen, lassen sich mit diversen Architektur-Bauteilen vielfältige architektonische Stile verwirklichen. Und zwar entweder mit Sattel-, Walm- oder Flachdach. Alle Grundrissvarianten dieses Eingeschossers funktionieren ohne Keller.
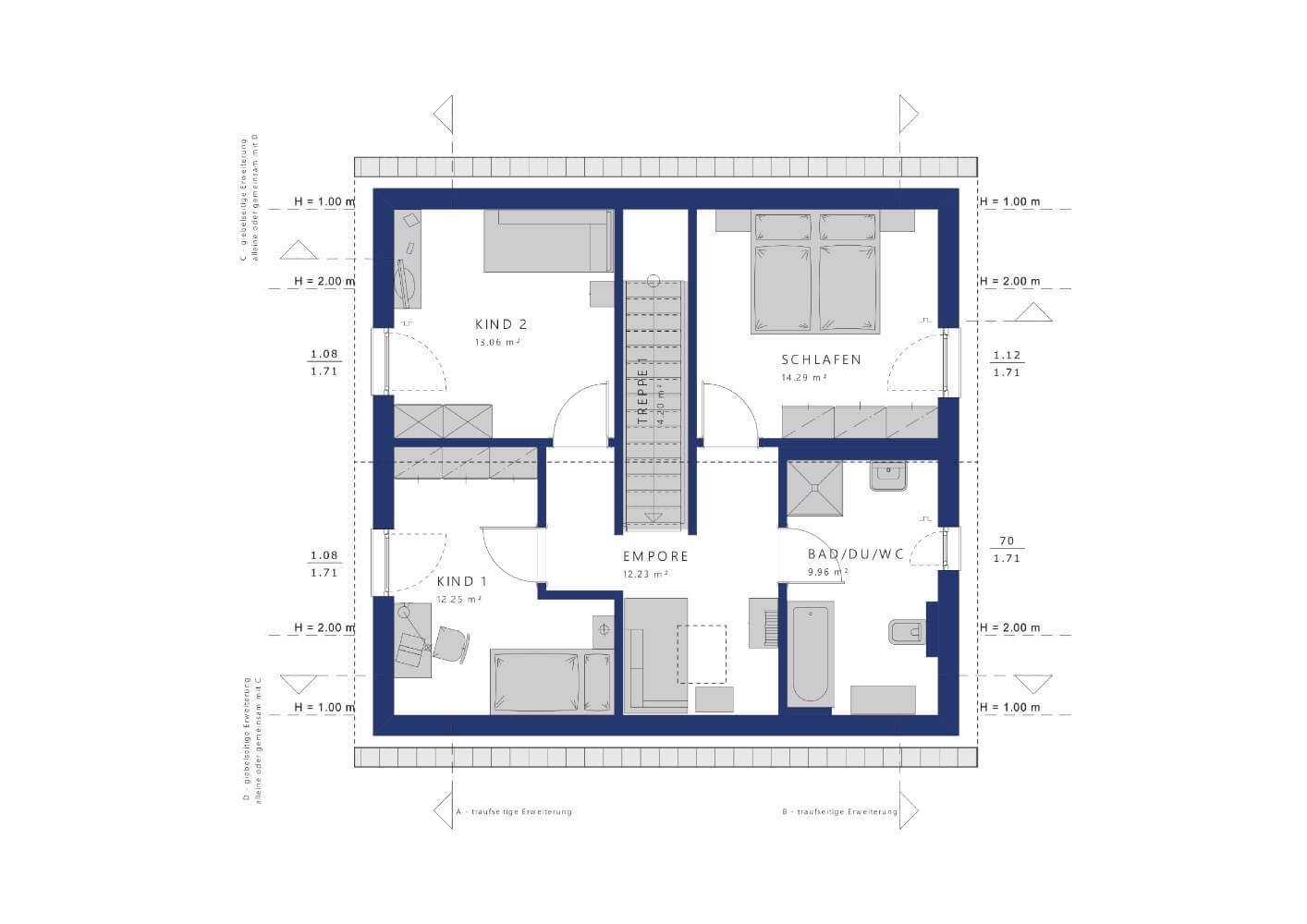
In diesem optionalen Untergeschoss kann man seine Hobbys pflegen oder man schafft hier zusätzlichen Wohn- bzw. Stauraum.
Statt Technikraum gibt´s im Erdgeschoss dann einen Abstellraum.
Haustyp: Bungalow
Etagenanzahl: 1
Provisionspflichtig: nein
Anzahl Schlafzimmer: 2
Anzahl Badezimmer: 2
Keller: nein
Qualität der Ausstattung: gehoben
Bauphase: Haus in Planung (projektiert)
Zustand: Haus in Planung (projektiert)
Das könnte Ihnen auch gefallen

Christian Müller - Freie Handelsvertretung der Bien-Zenker GmbH
Herr Christian Müller
Am Alten Schwimmbad 2
66450 Bexbach
Telefon: +49 152 34124425
55758 Allenbach

























































































































