Freisen:
Bestpreisgarantie bei Bien-Zenker - Natur pur und die eigenen vier Wände
Objekt-Nr.: 12221-101-43

Außenansicht

Außenansicht

Außenansicht

Außenansicht

EG

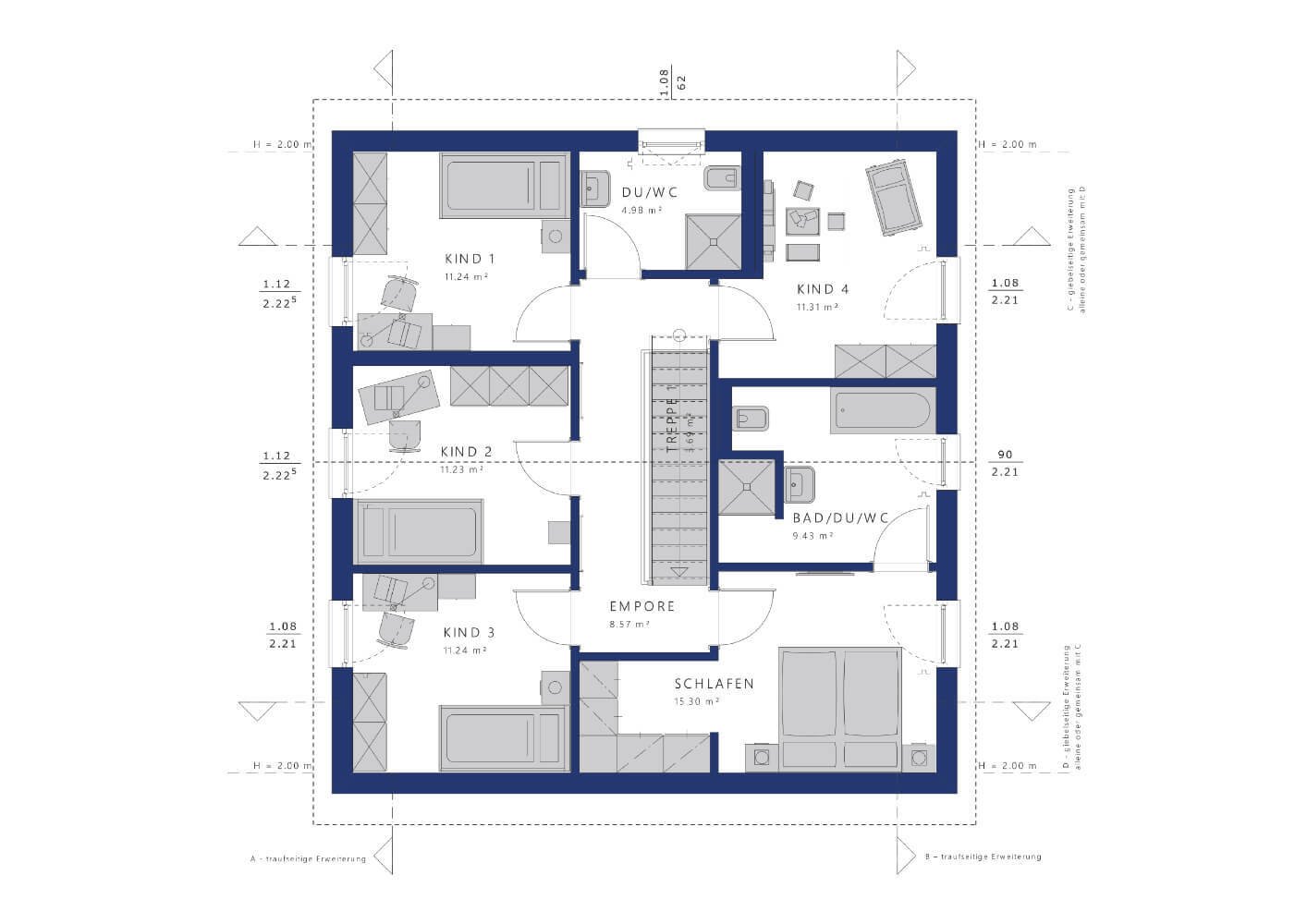
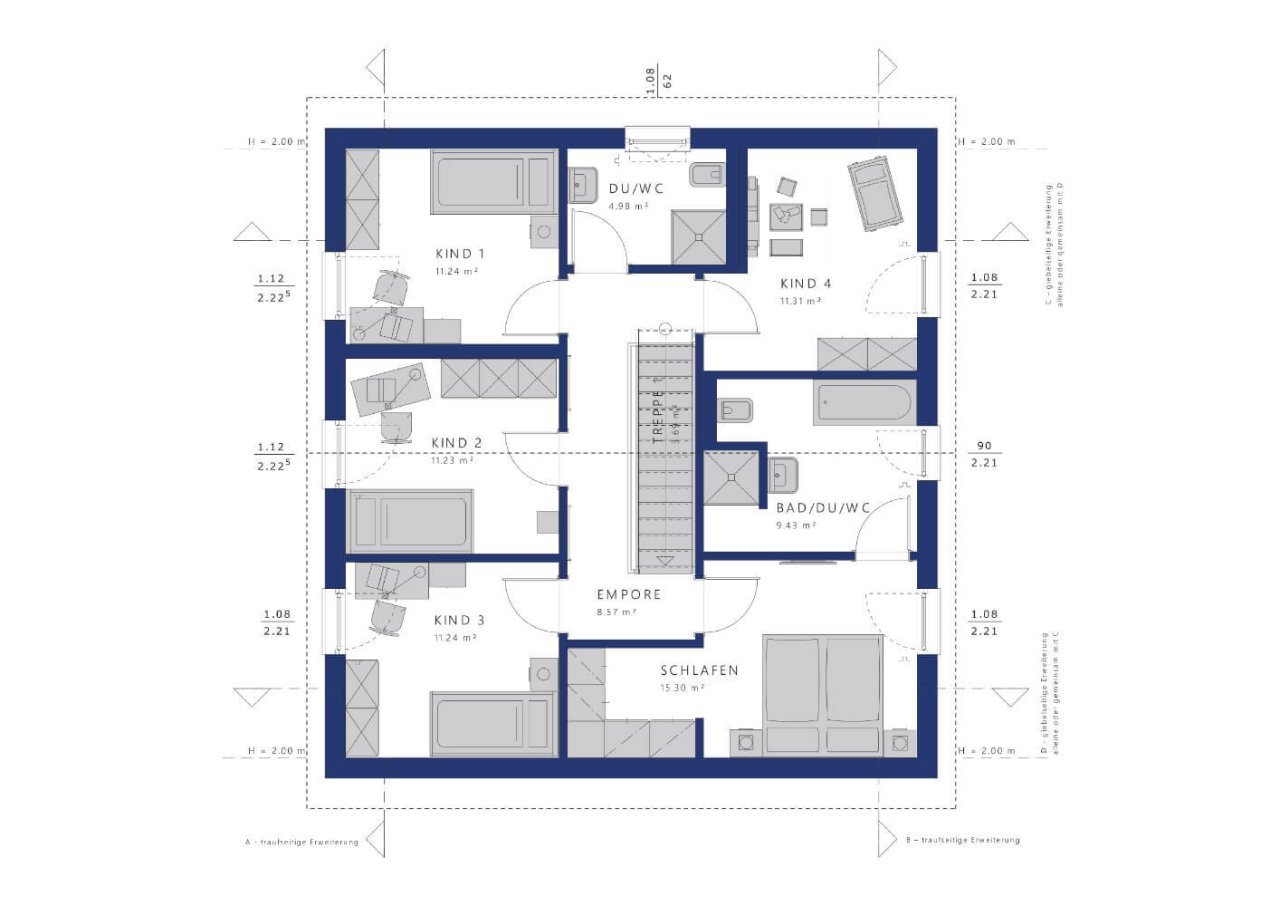
DG

Wohnen

Wohnen

Wohnen

Wohnen

Wohnen

Wohnen

Wohnen

Wohnen

Küche

Küche

Küche

Küche

Küche

Kind

Kind

Kind

Kind

Schlafen

Schlafen

Schlafen

Schlafen

Bad

Bad

Bad

Bad

Best- und Festpreis-Garantie

Deutscher Fertigbau

Begehrtester Fertighausanbieter

Herausragende Kundenzufriedenheit

Top Musterhäuser

Unternehmen des Jahres

Beste Nachhaltigkeit

Ausgezeichnete Bonität

Ausgezeichnete Nachhaltigkeit

Erster Platz KfW-Effizienzhäuser 40 Plus









































Preis:
455.789 €
Wohnfläche ca.:
176,04 m²
Grundstück ca.:
924 m²
Zimmeranzahl:
7
Das EVOLUTION 177 ist dank seiner hervorragenden Raumaufteilung genau das richtige Haus für größere Familien und kann auf Basis mehrerer vorgeplanter Varianten ganz individuell gestaltet werden. Als herrschaftliche Stadtvilla mit Walmdach zeigt es schon von außen wahre Größe. Außergewöhnlich große Fensterflächen und gleich zwei Wintergartenerker mit Balkon sorgen für fantastisch viel Licht im ganzen Haus und setzen gleichzeitig stilvolle Akzente.
Im Inneren entpuppt sich das EVOLUTION 177 als Wohntraum für größere Familien: Bei rund 176 Quadratmetern bleibt kein Wunsch offen. Den Mittelpunkt aller gemeinschaftlichen Aktivitäten bildet der große, offene Wohn-Ess-Kochbereich im Erdgeschoss, der durch üppige Glasflächen in ein sonniges Ambiente getaucht wird. Ruhe und Privatsphäre für ein entspanntes Familienleben finden die Bewohner im Obergeschoss mit gleich fünf Schlafzimmern und zwei Bädern. Und sollte noch mehr Platz gewünscht sein, vergrößern Sie den Grundriss ganz einfach durch eine oder mehrere Wohnraumerweiterungen.
Haustyp: Einfamilienhaus
Etagenanzahl: 2
Provisionspflichtig: nein
Anzahl Schlafzimmer: 5
Anzahl Badezimmer: 2
Gäste-WC: ja
Keller: nein
Qualität der Ausstattung: gehoben
Bauphase: Haus in Planung (projektiert)
Zustand: Haus in Planung (projektiert)
Das könnte Ihnen auch gefallen

Christian Müller - Freie Handelsvertretung der Bien-Zenker GmbH
Herr Christian Müller
Am Alten Schwimmbad 2
66450 Bexbach
Telefon: +49 152 34124425
66629 Freisen



























































































































