Mettlach:
Bestpreisgarantie bei Bien-Zenker - Die Umsetzung Ihrer Wünsche auf 2 Etagen
Objekt-Nr.: 12221-133-43

Außenansicht

Außenansicht

Außenansicht

Außenansicht

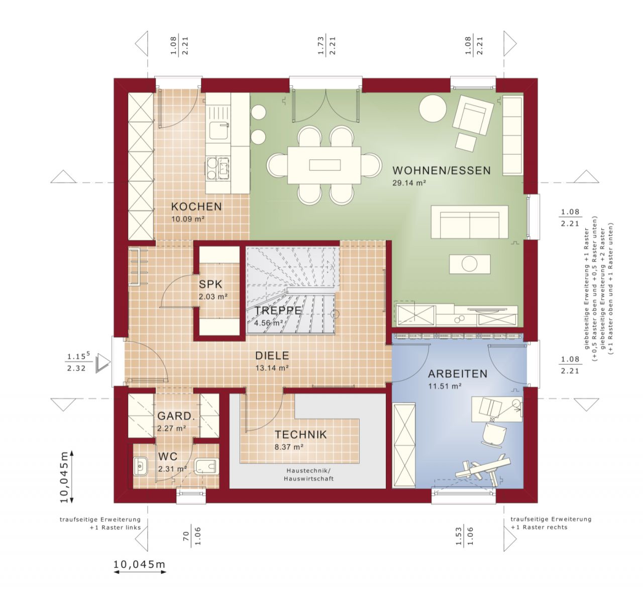
EG

DG

Wohnen

Wohnen

Wohnen

Wohnen

Wohnen

Wohnen

Wohnen

Wohnen

Küche

Küche

Küche

Küche

Küche

Kind

Kind

Kind

Kind

Schlafen

Schlafen

Schlafen

Schlafen

Bad

Bad

Bad

Bad

Best- und Festpreis

Deutscher Fertigbau

Begehrtester Fertighausanbieter

Herausragende Kundenzufriedenheit

Top Musterhäuser

Unternehmen des Jahres

Beste Nachhaltigkeit

Ausgezeichnete Bonität

Ausgezeichnete Nachhaltigkeit

Erster Platz KfW-Effizienzhäuser 40 Plus









































Preis:
492.168 €
Wohnfläche ca.:
155,06 m²
Grundstück ca.:
804 m²
Zimmeranzahl:
4
Das Meisterwerk - perfekt bis ins Detail.
EVOLUTION 154 überzeugt wie alle EVOLUTION Häuser mit Vielfalt und Individualität in Architektur und Design. Die großen Fenster und die klare Liniensprache verleihen diesem Haus sein elegant-modernes Gesicht. Unabhängig von Dachform, Vielfalt an Gestaltungsmöglichkeiten bei Formen und Farben sowie Fassadengestaltung als Putz-oder Klinkerfassade: Das EVOLUTION 154 ist repräsentativ. Als eines der größeren EVOLUTION Häuser bietet dieser Hausentwurf von allem noch ein bisschen mehr. Der attraktive Eingangsbereich führt direkt in das Wohn- und Esszimmer, das sich über die gesamte Hauslänge erstreckt. In Verbindung mit der großen angeschlossenen Küche und einer separaten Speisekammer entstehen ideale Voraussetzungen für individuelle Nutzungskonzepte. Drei Schlafzimmer und das große Wellness-Bad im Obergeschoss runden das großzügige Hauskonzept des EVOLUTION 154 ab.
Wir bearbeiten nur Anfragen mit vollständigen Kontaktdaten, wie Name, Anschrift, Telefonnummer und Mailadresse.
Die Qualität der Materialien, mit denen wir uns täglich umgeben, ist für unsere Gesundheit und die Umwelt wichtig. Dies wird auch mit dem Nachhaltigkeits-Zertifikat der Deutschen Gesellschaft für Nachhaltiges Bauen e.V. (DGNB) deutlich, mit dem Ihr Haus ausgezeichnet wird.
Haustyp: Einfamilienhaus
Etagenanzahl: 2
Provisionspflichtig: nein
Anzahl Schlafzimmer: 3
Anzahl Badezimmer: 1
Gäste-WC: ja
Keller: nein
Qualität der Ausstattung: gehoben
Bauphase: Haus in Planung (projektiert)
Zustand: Haus in Planung (projektiert)
Das könnte Ihnen auch gefallen

Christian Müller - Freie Handelsvertretung der Bien-Zenker GmbH
Herr Christian Müller
Am Alten Schwimmbad 2
66450 Bexbach
Telefon: +49 152 34124425
66693 Mettlach



























































































































