Kronweiler:
Bestpreisgarantie bei Bien-Zenker - Traumhaft schön - Dort wohnen, wo andere Urlaub machen
Objekt-Nr.: 12221-62-43

Außenansicht

Außenansicht

Außenansicht

Außenansicht

EG

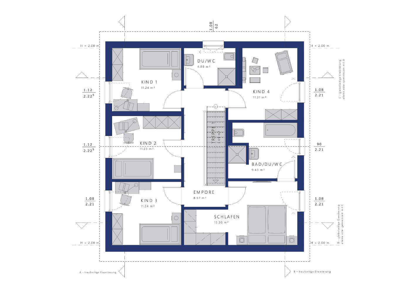
DG

Wohnen

Wohnen

Wohnen

Wohnen

Wohnen

Wohnen

Wohnen

Wohnen

Küche

Küche

Küche

Küche

Küche

Kind

Kind

Kind

Kind

Schlafen

Schlafen

Schlafen

Schlafen

Bad

Bad

Bad

Bad

Best- und Festpreis

Deutscher Fertigbau

Begehrtester Fertighausanbieter

Herausragende Kundenzufriedenheit

Top Musterhäuser

Unternehmen des Jahres

Beste Nachhaltigkeit

Ausgezeichnete Bonität

Ausgezeichnete Nachhaltigkeit

Erster Platz KfW-Effizienzhäuser 40 Plus









































Preis:
354.573 €
Wohnfläche ca.:
122,51 m²
Grundstück ca.:
776 m²
Zimmeranzahl:
4
Mit rund 7,50 mal 10 Metern Grundfläche eignet sich das EDITION 120 perfekt für kleinere Grundstücke – und bietet
einer vierköpfigen Familie alles, was man zum Wohnen braucht. Der familienfreundlichen Diele schließt sich ein
offener Wohn-Bereich an, und Gäste-WC sowie Technikraum bieten zusätzliche Funktionalität. Erstaunlich viel Raum
bietet auch das Obergeschoss mit Elternschlafzimmer und zwei Kinderzimmern plus geräumigem Bad. Der Eingang
kann auf der Giebel- oder auf der Traufseite liegen, dazu gibt es unterschiedliche Dachformen, Kniestockhöhen,
additive Bauteile und mehr. So wird Ihr EDITION 120 höchst individuell.
Haustyp: Einfamilienhaus
Etagenanzahl: 2
Provisionspflichtig: nein
Anzahl Schlafzimmer: 3
Anzahl Badezimmer: 1
Gäste-WC: ja
Keller: voll unterkellert
Bauphase: Haus in Planung (projektiert)
Das könnte Ihnen auch gefallen

Christian Müller - Freie Handelsvertretung der Bien-Zenker GmbH
Herr Christian Müller
Am Alten Schwimmbad 2
66450 Bexbach
Telefon: +49 152 34124425
55767 Kronweiler



























































































































