Weiskirchen:
Bestpreisgarantie bei Bien-Zenker - Ihr Traumhaus in bester Lage
Objekt-Nr.: 12221-Weiskirchen_49Amb88-15

Außenansicht

Außenansicht

Außenansicht

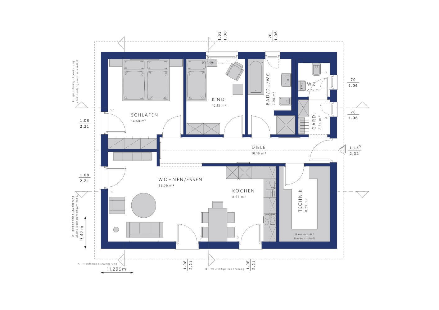
EG

Wohnen

Wohnen

Wohnen

Wohnen

Wohnen

Wohnen

Wohnen

Wohnen

Küche

Küche

Küche

Küche

Küche

Kind

Kind

Kind

Kind

Schlafen

Schlafen

Schlafen

Schlafen

Bad

Bad

Bad

Bad

Best- und Festpreis

Deutscher Fertigbau

Fairster Fertighausanbieter

Begehrtester Fertighausanbieter

Herausragende Kundenzufriedenheit

Top Musterhäuser

Unternehmen des Jahres

Beste Nachhaltigkeit

Ausgezeichnete Bonität

Ausgezeichnete Nachhaltigkeit

Erster Platz KfW-Effizienzhäuser 40 Plus








































Preis:
757.972 €
Wohnfläche ca.:
87,81 m²
Grundstück ca.:
1.475 m²
Zimmeranzahl:
3
Wer sagt denn, dass eine dreiköpfige Familie ein zweites Wohngeschoss braucht? Mit seinen cleveren Grundrissen bietet
das „AMBIENCE 88“ alles, was man zum komfortablen Wohnen braucht. Eine weitläufige Diele gliedert die Räume jeweils in
einen offenen Teil für gemeinsames Kochen, Essen und Wohnen, der sich mit großen Fensterflächen nach Süden hin öffnet.
Gegen Norden sind die privaten Rückzugsbereiche orientiert, sodass die etwa 88 Quadratmeter Wohnfläche insgesamt
bestens konzipiert sind.
Bemerkenswert auch die architektonische Gestaltung der einzelnen Varianten: Da ist der Bungalow mit elegantem Dachüberstand, der die klassische Satteldacharchitektur zeitgemäß interpretiert. Der Walmdach-Bungalow besticht mit seiner eindrucksvoll vielgliedrigen Dachlandschaft. Und für anspruchsvolle Baufamilien, die Gefallen an einer klaren Linienführung finden, stellt die puristische Flachdachvariante einer zeitlosen Gestaltung auf Basis der Bauhaustradition dar.
Haustyp: Bungalow
Etagenanzahl: 1
Provisionspflichtig: nein
Anzahl Schlafzimmer: 2
Anzahl Badezimmer: 1
Gäste-WC: ja
Keller: voll unterkellert
Qualität der Ausstattung: gehoben
Bauphase: Haus in Planung (projektiert)
Zustand: Haus in Planung (projektiert)
Das könnte Ihnen auch gefallen

Christian Müller - Freie Handelsvertretung der Bien-Zenker GmbH
Herr Christian Müller
Am Alten Schwimmbad 2
66450 Bexbach
Telefon: +49 152 34124425
66709 Weiskirchen






























































































































